Limestone Retaining Wall Engineering Drawings at Drawing

Best drawing Tips and References website . Search anything about drawing Ideas in this website.

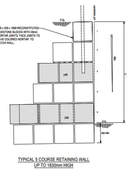
Limestone Retaining Wall Engineering Drawings. Wilkie provides practical engineering inspections and assessment of retaining walls during their construction to ensure the walls are built in accordance with the design drawings and australian standards. Also you'll need the certified engineering drawings for the existing limestone wall and proof that it supports the new applied loads unfortunately it gets messy and worse should things go wrong with structural warranties further down the track ot 1m and higher retaining/parapet walls requires reinforcement cheers chris

Concrete Retaining Wall Inspection Gallery InterNACHI®
Concrete Retaining Wall Inspection Gallery InterNACHI® from www.nachi.org

You need to consider several factors before making the choice to lay your own limestone retaining walls in perth. | privacy policy | website by geekpower web design in toronto Wilkie provides practical engineering inspections and assessment of retaining walls during their construction to ensure the walls are built in accordance with the design drawings and australian standards.

Concrete Retaining Wall Inspection Gallery InterNACHI®

The structural backfill wall is a reinforced retaining wall which offers a unique, nonconventional solution to problematic wall construction sites. But if you have the skill, you can do the job well with the right advice. Drainage considerations are undertaken by the design structural. You need to consider several factors before making the choice to lay your own limestone retaining walls in perth.